16 Carmichael Crescent Collingwood, Ontario L9Y 4R6

5 Bedroom 4 Bathroom 2,500 - 3,000 sqft
Fireplace Central Air Conditioning Forced Air

$1,599,000

Desirable Lockhart neighbourhood! Situated on a beautifully landscaped estate lot, this custom-built family home (5 Bedrooms/4 Bathrooms) has been meticulously maintained and thoughtfully upgraded throughout. Backing onto Kinsmen Park, the property offers exceptional privacy and a serene natural setting. Enjoy year-round comfort in the stunning three-season glass solarium (23.9 X12.10 sf ), complete with an integrated hot tub and Chantico glass fireplace-an ideal space to relax or entertain. The spacious kitchen features granite countertops, a breakfast bar, and flows seamlessly into a large dining area with a custom gas fireplace, perfect for family gatherings. A bright family room with cathedral ceilings and an additional gas fireplace provides a warm and inviting atmosphere. Second level~ The primary suite serves as a private retreat, offering a soaker tub, glass shower, walk-in closet, and scenic views toward Osler Ski Resort, two generously sized bedrooms and a 4-piece bath. A versatile main floor bedroom, currently used as a den, is ideal for guests or a home office. Great space in the fully finished basement is designed for entertaining, featuring a quality pool table, spacious bedroom, 3-piece bath, and separate access to both the garage and backyard-ideal for potential in-law accommodation. Car enthusiasts will appreciate the oversized Double garage (22 X 22 ft), while the fully fenced backyard offers a private outdoor oasis with expansive decking (610 sf) a custom shed, perennial gardens, and the solarium as its centerpiece.16 Carmichael Crescent is a timeless home offering 4500+ sq ft of living space (including solarium), situated on a quiet crescent surrounded by lovely homes. Walking distance to 4 schools~ Admiral Collingwood, Notre-Dame de Huronie, Our Lady of the Bay, and CCI, as well as downtown, trails, and recreation. Southern Georgian Bay offers a fabulous lifestyle all seasons on the sparkling blue water of Georgian Bay! View the Virtual Tour (id:42776)

Open House

This property has open houses!

April
19
Sunday
Starts at:

1:00 pm

Ends at:

3:00 pm

Property Details

MLS® Number S13003460
Property Type Single Family
Community Name Collingwood
Equipment Type Water Heater
Features Sump Pump
Parking Space Total 6
Rental Equipment Type Water Heater
View Type Mountain View

Building

Bathroom Total 4
Bedrooms Above Ground 4
Bedrooms Below Ground 1
Bedrooms Total 5
Amenities Fireplace(s)
Appliances Garage Door Opener Remote(s), Dishwasher, Dryer, Microwave, Stove, Washer, Window Coverings, Refrigerator
Basement Development Finished
Basement Features Walk-up, Separate Entrance
Basement Type N/a (finished), N/a, N/a
Construction Style Attachment Detached
Cooling Type Central Air Conditioning
Exterior Finish Brick
Fireplace Present Yes
Fireplace Total 3
Flooring Type Hardwood, Tile, Slate
Foundation Type Concrete
Half Bath Total 1
Heating Fuel Natural Gas
Heating Type Forced Air
Stories Total 2
Size Interior 2,500 - 3,000 Sqft
Type House
Utility Water Municipal Water

Parking

Attached Garage
Garage
Inside Entry

Land

Acreage No
Sewer Sanitary Sewer
Size Depth 105 Ft
Size Frontage 70 Ft
Size Irregular 70 X 105 Ft
Size Total Text 70 X 105 Ft

Rooms

Level Type Dimensions
Second Level Bedroom 4 4.21 m x 4.13 m
Second Level Bathroom 1.54 m x 3.19 m
Second Level Primary Bedroom 4.21 m x 4.13 m
Second Level Bathroom 3.04 m x 3.29 m
Second Level Bedroom 3 3.12 m x 4.08 m
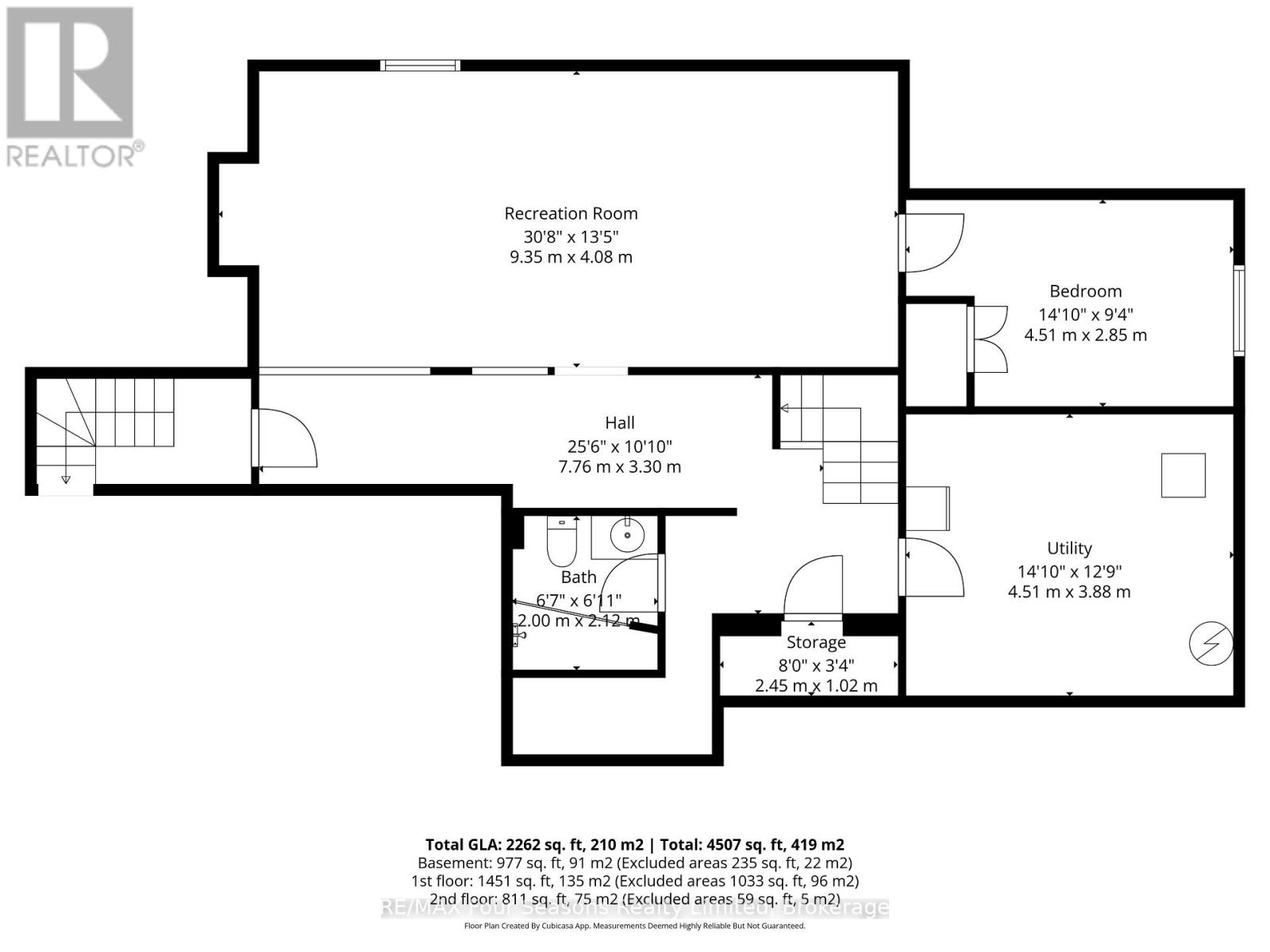
Basement Recreational, Games Room 9.35 m x 4.08 m
Basement Bedroom 5 4.51 m x 2.85 m
Basement Bathroom 2 m x 2.12 m
Main Level Kitchen 3.68 m x 4.15 m
Main Level Living Room 4.5 m x 7.18 m
Main Level Dining Room 5.21 m x 4.43 m
Main Level Bathroom 1.4 m x 1.5 m
Main Level Bedroom 2.75 m x 3.24 m
Main Level Laundry Room 2.54 m x 4.11 m
Main Level Foyer 4.67 m x 2.33 m

Utilities

Cable Installed
Electricity Installed
Sewer Installed

https://www.realtor.ca/real-estate/29610139/16-carmichael-crescent-collingwood-collingwood


RE/MAX Four Seasons Realty Limited
67 First St.
Collingwood, Ontario L9Y 1A2

(705) 445-8500
(705) 445-0589
www.remaxcollingwood.com/

Contact Us

Contact us for more information


Generating Captcha