300 Ridge Street Saugeen Shores, Ontario N0H 2C3
$949,900
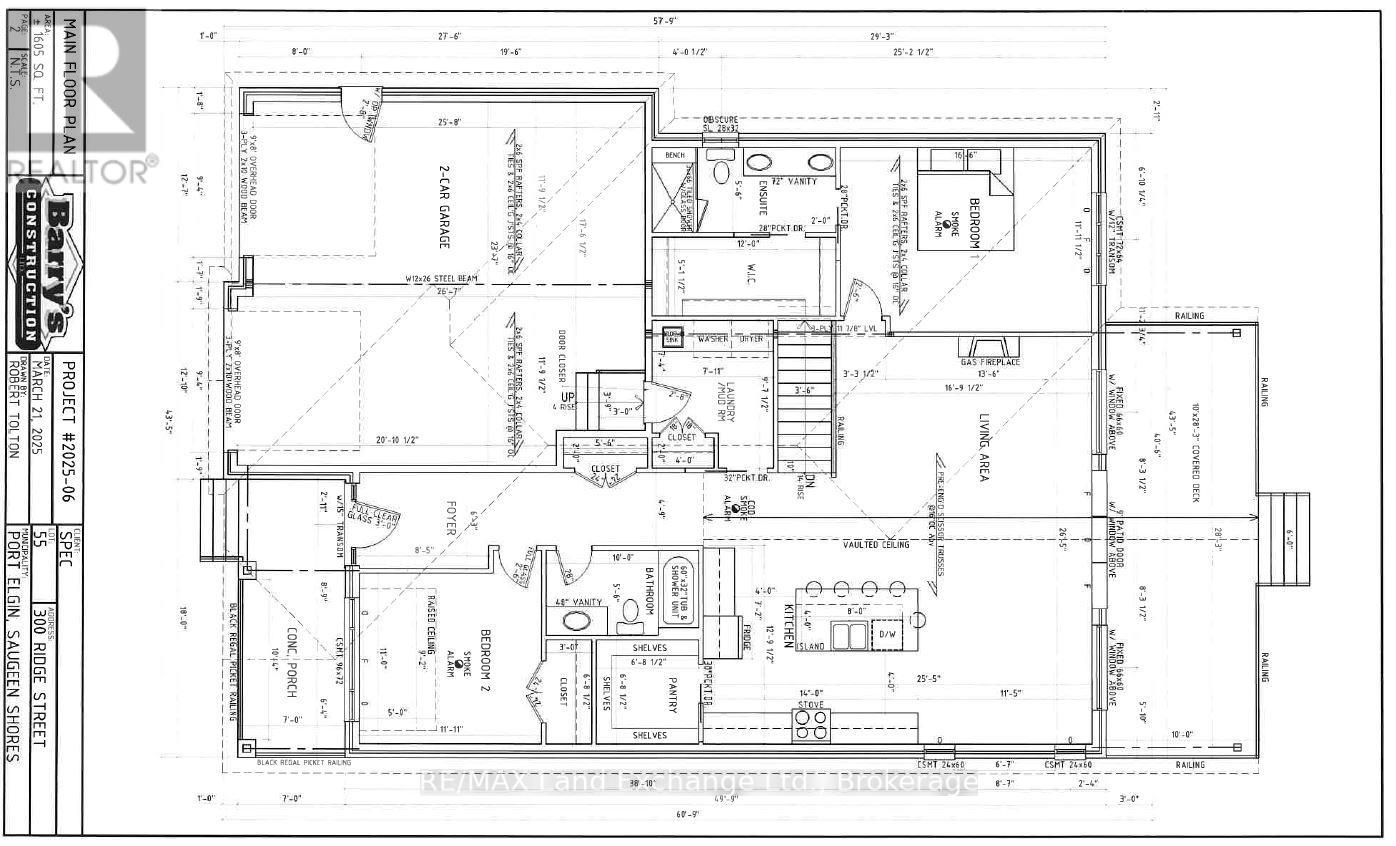
One of our favorite plans. This 2 + 2 bedroom 3 bath bungalow is located in one of Port Elgin's newest streets at 300 Ridge Street; on the south end of town close to walking trails and the beach. Boasting 1605 sqft on the main floor with vaulted ceilings in the principle area; 9 foot ceilings in the balance, quartz kitchen counter tops, walk-in pantry, gas fireplace, tiled shower in the ensuite bath, hardwood staircase from the main floor to the basement, and hardwood and ceramic flooring. The basement is finished with the exception of the utility room and will feature a family room, 2 bedrooms and 3pc bath. Exterior finishing includes a sodded yard, pressure treated covered deck 10 x 28'3 and double concrete drive. Bonus extras include central air conditioning and automatic garage door openers. Color selections may be available to those that act early. HST is in addition to the asking price. The Builder will co operate with the Buyers to secure the HST rebate provided it is approved by the Government and the Buyer is entitled to it. Prices subject to change without notice. (id:42776)
Property Details
| MLS® Number | X12307339 |
| Property Type | Single Family |
| Community Name | Saugeen Shores |
| Equipment Type | Water Heater - Tankless, Water Heater |
| Features | Sump Pump |
| Parking Space Total | 4 |
| Rental Equipment Type | Water Heater - Tankless, Water Heater |
Building
| Bathroom Total | 3 |
| Bedrooms Above Ground | 2 |
| Bedrooms Below Ground | 2 |
| Bedrooms Total | 4 |
| Amenities | Fireplace(s) |
| Appliances | Garage Door Opener Remote(s), Water Heater - Tankless, Garage Door Opener |
| Architectural Style | Bungalow |
| Basement Development | Finished |
| Basement Type | N/a (finished) |
| Construction Style Attachment | Detached |
| Cooling Type | Central Air Conditioning, Air Exchanger |
| Exterior Finish | Stone, Vinyl Siding |
| Fireplace Present | Yes |
| Fireplace Total | 1 |
| Flooring Type | Hardwood, Tile |
| Foundation Type | Poured Concrete |
| Heating Fuel | Natural Gas |
| Heating Type | Forced Air |
| Stories Total | 1 |
| Size Interior | 1,500 - 2,000 Sqft |
| Type | House |
| Utility Water | Municipal Water |
Parking
| Attached Garage | |
| Garage |
Land
| Acreage | No |
| Sewer | Sanitary Sewer |
| Size Depth | 118 Ft |
| Size Frontage | 56 Ft ,9 In |
| Size Irregular | 56.8 X 118 Ft |
| Size Total Text | 56.8 X 118 Ft |
| Zoning Description | R1-84 |
Rooms
| Level | Type | Length | Width | Dimensions |
|---|---|---|---|---|
| Basement | Utility Room | 4.72 m | 4.93 m | 4.72 m x 4.93 m |
| Basement | Family Room | 8.05 m | 5.31 m | 8.05 m x 5.31 m |
| Basement | Bedroom 3 | 4.24 m | 3.38 m | 4.24 m x 3.38 m |
| Basement | Bedroom 4 | 3.78 m | 3.38 m | 3.78 m x 3.38 m |
| Main Level | Bedroom 2 | 3.35 m | 3.63 m | 3.35 m x 3.63 m |
| Main Level | Foyer | 2.57 m | 1.91 m | 2.57 m x 1.91 m |
| Main Level | Laundry Room | 2.41 m | 2.92 m | 2.41 m x 2.92 m |
| Main Level | Kitchen | 3.89 m | 4.27 m | 3.89 m x 4.27 m |
| Main Level | Pantry | 2.03 m | 2.03 m | 2.03 m x 2.03 m |
| Main Level | Dining Room | 3.48 m | 3.89 m | 3.48 m x 3.89 m |
| Main Level | Living Room | 5.03 m | 3.35 m | 5.03 m x 3.35 m |
| Main Level | Primary Bedroom | 5.03 m | 3.63 m | 5.03 m x 3.63 m |
Utilities
| Cable | Available |
| Electricity | Installed |
| Sewer | Installed |
https://www.realtor.ca/real-estate/28653537/300-ridge-street-saugeen-shores-saugeen-shores
645 Goderich St
Port Elgin, Ontario N0H 2C0
(519) 389-4600
(519) 389-4618
www.remaxlandexchange.ca/
645 Goderich St
Port Elgin, Ontario N0H 2C0
(519) 389-4600
(519) 389-4618
www.remaxlandexchange.ca/
Contact Us
Contact us for more information




