465 Northport Drive Saugeen Shores, Ontario N0H 2C8
$919,900
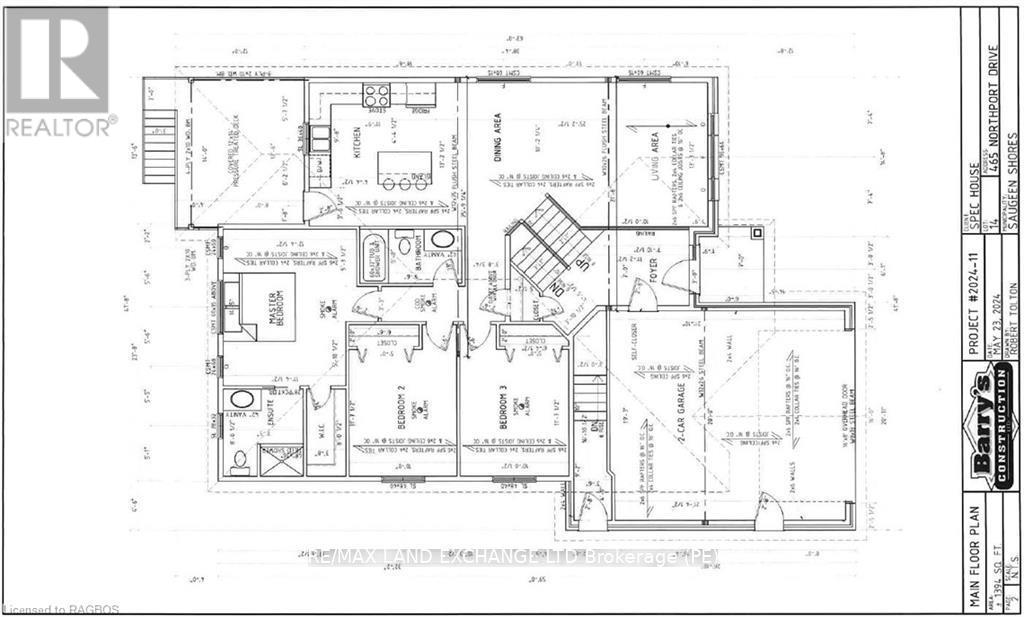
2 Separate Units in One House! This raised bungalow features a 3 bedroom, 2 bath unit on the main floor and a 1 bedroom, 1 bath unit in the basement. Located at 465 Northport Drive in Port Elgin it is almost finished on the outside; great location to Northport Elementary and shopping. Features of this home 1394 Sqft home include tiled shower in the ensuite, Quartz counter tops in the main kitchen, central air, gas fireplace in the basement unit, Automatic garage door opener, sodded yard, partially covered 12 x 14 deck, concrete drive and more. House can be completed in approximately 90 days. Prices subject to change without notice. HST is in addition to the asking price. The Builder will co operate with the Buyers to secure the HST rebate provided it is approved by the Government and the Buyer is entitled to it. (id:42776)
Property Details
| MLS® Number | X11822706 |
| Property Type | Single Family |
| Community Name | Saugeen Shores |
| Equipment Type | Water Heater - Tankless, Water Heater |
| Features | Flat Site, Sump Pump, In-law Suite |
| Parking Space Total | 4 |
| Rental Equipment Type | Water Heater - Tankless, Water Heater |
| Structure | Deck |
Building
| Bathroom Total | 3 |
| Bedrooms Above Ground | 3 |
| Bedrooms Below Ground | 1 |
| Bedrooms Total | 4 |
| Age | New Building |
| Amenities | Fireplace(s) |
| Appliances | Water Heater - Tankless, Garage Door Opener |
| Architectural Style | Raised Bungalow |
| Basement Features | Walk-up, Apartment In Basement |
| Basement Type | N/a, N/a |
| Construction Style Attachment | Detached |
| Cooling Type | Central Air Conditioning, Air Exchanger |
| Exterior Finish | Stone, Vinyl Siding |
| Fireplace Present | Yes |
| Fireplace Total | 1 |
| Flooring Type | Tile |
| Foundation Type | Poured Concrete |
| Heating Fuel | Natural Gas |
| Heating Type | Forced Air |
| Stories Total | 1 |
| Size Interior | 1,100 - 1,500 Sqft |
| Type | House |
| Utility Water | Municipal Water |
Parking
| Attached Garage | |
| Garage |
Land
| Access Type | Year-round Access |
| Acreage | No |
| Sewer | Sanitary Sewer |
| Size Depth | 132 Ft ,3 In |
| Size Frontage | 48 Ft ,8 In |
| Size Irregular | 48.7 X 132.3 Ft |
| Size Total Text | 48.7 X 132.3 Ft|under 1/2 Acre |
| Zoning Description | R2-11 |
Rooms
| Level | Type | Length | Width | Dimensions |
|---|---|---|---|---|
| Basement | Kitchen | 3.61 m | 2.44 m | 3.61 m x 2.44 m |
| Basement | Utility Room | 2.87 m | 3.63 m | 2.87 m x 3.63 m |
| Basement | Recreational, Games Room | 6.93 m | 3.76 m | 6.93 m x 3.76 m |
| Basement | Bedroom | 3.15 m | 3.15 m | 3.15 m x 3.15 m |
| Basement | Family Room | 7.75 m | 3.94 m | 7.75 m x 3.94 m |
| Main Level | Foyer | 2.13 m | 2.39 m | 2.13 m x 2.39 m |
| Main Level | Living Room | 3.05 m | 4.04 m | 3.05 m x 4.04 m |
| Main Level | Dining Room | 3.23 m | 3.05 m | 3.23 m x 3.05 m |
| Main Level | Kitchen | 3.58 m | 4.01 m | 3.58 m x 4.01 m |
| Main Level | Bedroom | 3.05 m | 3.53 m | 3.05 m x 3.53 m |
| Main Level | Bedroom | 3.05 m | 3.53 m | 3.05 m x 3.53 m |
| Main Level | Primary Bedroom | 3.76 m | 4.39 m | 3.76 m x 4.39 m |
Utilities
| Cable | Available |
| Electricity | Installed |
| Wireless | Available |
| Sewer | Installed |
https://www.realtor.ca/real-estate/27664832/465-northport-drive-saugeen-shores-saugeen-shores
645 Goderich St
Port Elgin, Ontario N0H 2C0
(519) 389-4600
(519) 389-4618
www.remaxlandexchange.ca/
645 Goderich St
Port Elgin, Ontario N0H 2C0
(519) 389-4600
(519) 389-4618
www.remaxlandexchange.ca/
Contact Us
Contact us for more information




