469 Northport Drive Saugeen Shores, Ontario N0H 2C8
$884,900
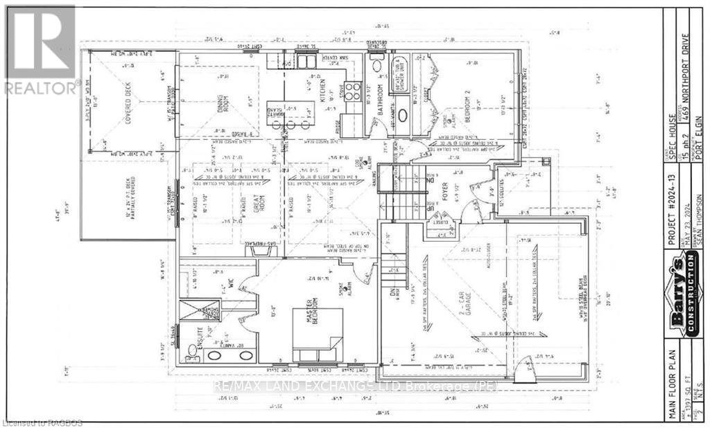
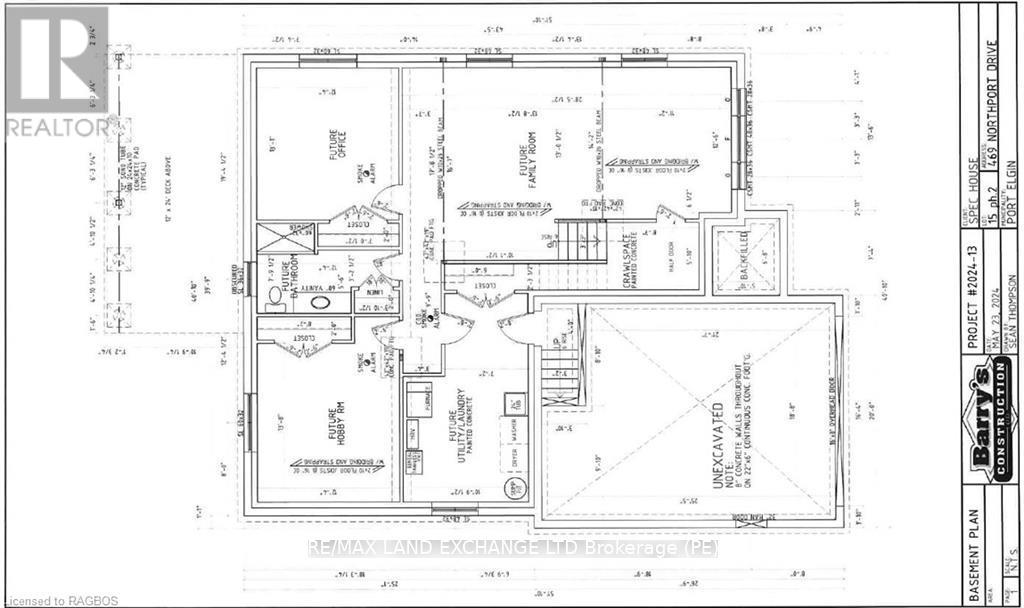
This raised bungalow at 469 Northport Drive is currently being finished on the outside; and has 2 + 2 bedrooms and 3 full baths. The main floor is 1397 sqft; with an open concept living room, dining area and kitchen through the center that walks out to a partially covered deck measuring 12 x 24. The entire main floor with be hardwood and ceramic with Quartz counter tops in the kitchen, gas fireplace in the great room and tiled shower in the ensuite. The basement features a family room, 2 bedrooms, 3pc bath and laundry room with access to the 2 car garage. Prices subject to change without notice. HST is in addition to the asking price. The Builder will co operate with the Buyers to secure the HST rebate provided it is approved by the Government and the Buyer is entitled to it. (id:42776)
Property Details
| MLS® Number | X11879912 |
| Property Type | Single Family |
| Community Name | Saugeen Shores |
| Equipment Type | Water Heater - Tankless, Water Heater |
| Features | Flat Site, Sump Pump |
| Parking Space Total | 4 |
| Rental Equipment Type | Water Heater - Tankless, Water Heater |
| Structure | Deck |
Building
| Bathroom Total | 3 |
| Bedrooms Above Ground | 2 |
| Bedrooms Below Ground | 2 |
| Bedrooms Total | 4 |
| Age | New Building |
| Amenities | Fireplace(s) |
| Appliances | Water Heater - Tankless, Water Meter, Garage Door Opener |
| Architectural Style | Raised Bungalow |
| Basement Development | Finished |
| Basement Features | Walk-up |
| Basement Type | N/a, N/a (finished) |
| Construction Style Attachment | Detached |
| Cooling Type | Central Air Conditioning, Air Exchanger |
| Exterior Finish | Stone, Vinyl Siding |
| Fireplace Present | Yes |
| Fireplace Total | 1 |
| Flooring Type | Tile, Hardwood |
| Foundation Type | Poured Concrete |
| Heating Fuel | Natural Gas |
| Heating Type | Forced Air |
| Stories Total | 1 |
| Size Interior | 1,100 - 1,500 Sqft |
| Type | House |
| Utility Water | Municipal Water |
Parking
| Attached Garage | |
| Garage |
Land
| Access Type | Year-round Access |
| Acreage | No |
| Sewer | Sanitary Sewer |
| Size Depth | 132 Ft ,4 In |
| Size Frontage | 48 Ft ,8 In |
| Size Irregular | 48.7 X 132.4 Ft |
| Size Total Text | 48.7 X 132.4 Ft|under 1/2 Acre |
| Zoning Description | R2-11 |
Rooms
| Level | Type | Length | Width | Dimensions |
|---|---|---|---|---|
| Basement | Laundry Room | 3.28 m | 3.35 m | 3.28 m x 3.35 m |
| Basement | Family Room | 8.66 m | 3.84 m | 8.66 m x 3.84 m |
| Basement | Bedroom | 3.99 m | 3.76 m | 3.99 m x 3.76 m |
| Basement | Bedroom | 4.17 m | 3.76 m | 4.17 m x 3.76 m |
| Main Level | Foyer | 2.06 m | 2.46 m | 2.06 m x 2.46 m |
| Main Level | Great Room | 7.57 m | 4.55 m | 7.57 m x 4.55 m |
| Main Level | Dining Room | 3.05 m | 3.35 m | 3.05 m x 3.35 m |
| Main Level | Kitchen | 3.23 m | 3.66 m | 3.23 m x 3.66 m |
| Main Level | Primary Bedroom | 3.96 m | 4.52 m | 3.96 m x 4.52 m |
| Main Level | Bedroom | 4.04 m | 3.2 m | 4.04 m x 3.2 m |
Utilities
| Cable | Available |
| Electricity | Installed |
| Wireless | Available |
| Sewer | Installed |
https://www.realtor.ca/real-estate/27707050/469-northport-drive-saugeen-shores-saugeen-shores
645 Goderich St
Port Elgin, Ontario N0H 2C0
(519) 389-4600
(519) 389-4618
www.remaxlandexchange.ca/
645 Goderich St
Port Elgin, Ontario N0H 2C0
(519) 389-4600
(519) 389-4618
www.remaxlandexchange.ca/
Contact Us
Contact us for more information




