69 Caribou Trail Wasaga Beach, Ontario L9Z 1N3
$799,900
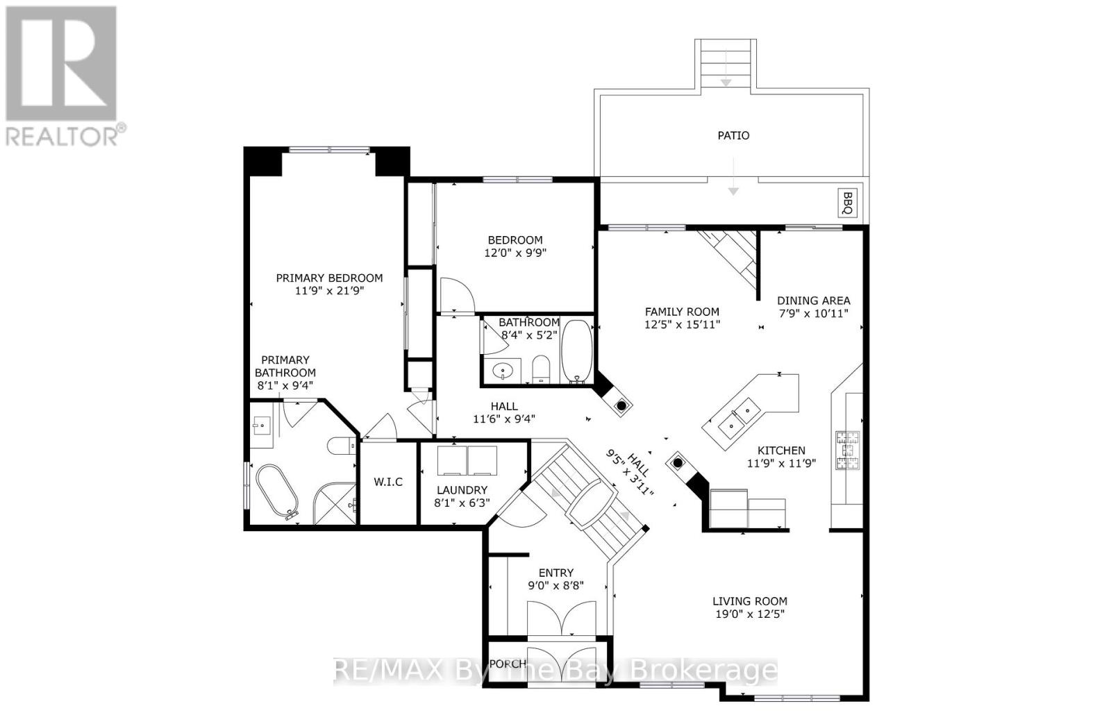
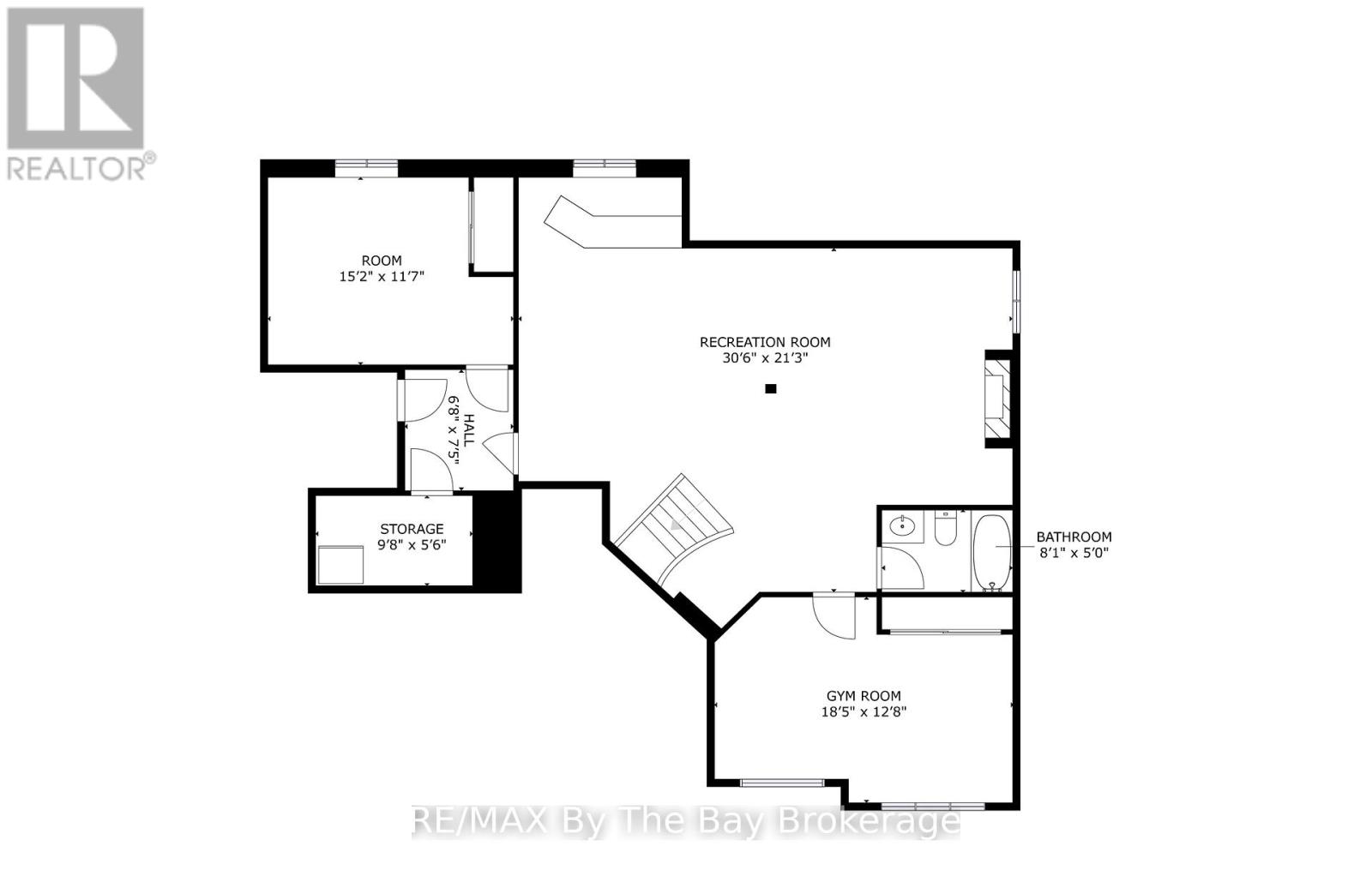
New to Market! All-Brick Raised Bungalow on Corner Lot. Welcome to this beautifully maintained all-brick raised bungalow, ideally situated on a corner lot in one of Wasaga Beach's most sought-after neighbourhoods. Just steps from Birchview Dunes Public School and a short walk to the Blueberry Trails for hiking, biking, and cross-country skiing, this home blends comfort, convenience, and lifestyle. Step inside to a bright open-concept floor plan featuring a kitchen with centre island, spacious eating area, and a cozy main-floor family room with a gas fireplace. A large, separate living room offers the perfect space for gatherings, while the walkout from the eating area leads to a large deck overlooking a fully fenced backyard complete with hot tub, heated above-ground pool, and fire pit area - ideal for entertaining or relaxing outdoors. The primary bedroom features a walk-in closet and a modern four-piece ensuite with a separate shower and standalone soaker tub. Main floor laundry adds everyday convenience. The finished basement provides even more living space with a large recreation room with gas fireplace, two additional bedrooms, and a full four-piece bath - perfect for guests or extended family. Additional highlights include a double car garage with inside entry, a large welcoming front foyer, new gas furnace (2024), and central air (approx. 3 years old). This home truly offers the best of Wasaga Beach living - space, comfort, and an unbeatable location close to schools, trails, and amenities. (id:42776)
Property Details
| MLS® Number | S12521292 |
| Property Type | Single Family |
| Community Name | Wasaga Beach |
| Amenities Near By | Schools |
| Equipment Type | Water Heater |
| Parking Space Total | 6 |
| Pool Type | Above Ground Pool |
| Rental Equipment Type | Water Heater |
| Structure | Deck, Shed |
Building
| Bathroom Total | 3 |
| Bedrooms Above Ground | 2 |
| Bedrooms Below Ground | 2 |
| Bedrooms Total | 4 |
| Age | 16 To 30 Years |
| Amenities | Fireplace(s) |
| Appliances | Hot Tub, Garage Door Opener Remote(s), Dishwasher, Garage Door Opener, Microwave |
| Architectural Style | Bungalow |
| Basement Development | Finished |
| Basement Type | Full (finished) |
| Construction Style Attachment | Detached |
| Cooling Type | Central Air Conditioning |
| Exterior Finish | Brick |
| Fireplace Present | Yes |
| Fireplace Total | 2 |
| Foundation Type | Concrete |
| Heating Fuel | Natural Gas |
| Heating Type | Forced Air |
| Stories Total | 1 |
| Size Interior | 1,500 - 2,000 Ft2 |
| Type | House |
| Utility Water | Municipal Water |
Parking
| Attached Garage | |
| Garage |
Land
| Acreage | No |
| Fence Type | Fully Fenced |
| Land Amenities | Schools |
| Sewer | Sanitary Sewer |
| Size Depth | 109 Ft ,9 In |
| Size Frontage | 81 Ft ,10 In |
| Size Irregular | 81.9 X 109.8 Ft |
| Size Total Text | 81.9 X 109.8 Ft |
| Zoning Description | R1 |
Rooms
| Level | Type | Length | Width | Dimensions |
|---|---|---|---|---|
| Basement | Bedroom 4 | 3.34 m | 6.52 m | 3.34 m x 6.52 m |
| Basement | Recreational, Games Room | 1.26 m | 9.2 m | 1.26 m x 9.2 m |
| Basement | Bedroom 3 | 3.35 m | 5.47 m | 3.35 m x 5.47 m |
| Main Level | Kitchen | 3.49 m | 4.16 m | 3.49 m x 4.16 m |
| Main Level | Eating Area | 2.32 m | 3.2 m | 2.32 m x 3.2 m |
| Main Level | Family Room | 3.61 m | 4.03 m | 3.61 m x 4.03 m |
| Main Level | Living Room | 3.64 m | 5.64 m | 3.64 m x 5.64 m |
| Main Level | Bedroom 2 | 2.93 m | 3.59 m | 2.93 m x 3.59 m |
| Main Level | Primary Bedroom | 3.51 m | 5.47 m | 3.51 m x 5.47 m |
| Main Level | Foyer | 2.68 m | 3.48 m | 2.68 m x 3.48 m |
| Main Level | Laundry Room | 1.81 m | 2.43 m | 1.81 m x 2.43 m |
https://www.realtor.ca/real-estate/29079694/69-caribou-trail-wasaga-beach-wasaga-beach
6-1263 Mosley Street
Wasaga Beach, Ontario L9Z 2Y7
(705) 429-4500
(705) 429-4019
www.remaxbythebay.ca/
6-1263 Mosley Street
Wasaga Beach, Ontario L9Z 2Y7
(705) 429-4500
(705) 429-4019
www.remaxbythebay.ca/
Contact Us
Contact us for more information











































