6960 34 Line West Perth, Ontario N0K 1E0
$1,400,000
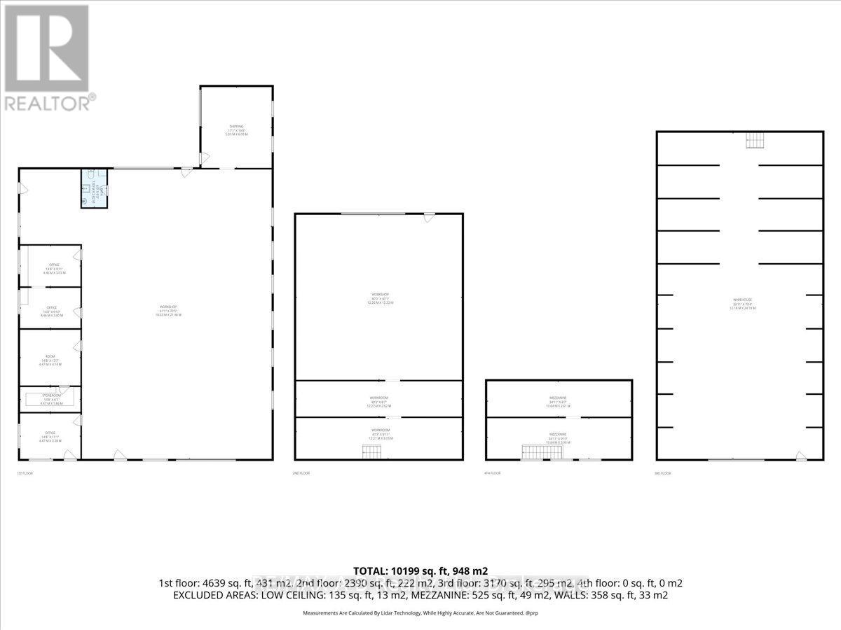
For Sale: Prime Industrial Property West of Mitchell. Take advantage of this exceptional opportunity to own 2.2 acres of industrial-zoned land featuring prime highway exposure just west of Mitchell. This property includes three large buildings, each equipped with 14ft doors-perfectly suited for trucks and trailers-and an outdoor loading dock to streamline your operations. The fully fenced, gravel yard offers plenty of outdoor storage, enhanced by natural gas on site and an industrial zoning designation. Phase 2 environmental assessment is on file. Whether you're expanding or relocating, this site is ready to support a wide range of industrial uses. Don't miss this strategic location with outstanding visibility and accessibility. (id:42776)
Property Details
| MLS® Number | X12960808 |
| Property Type | Industrial |
| Community Name | Logan |
| Amenities Near By | Highway |
| Farm Type | Other |
Building
| Cooling Type | None |
| Heating Fuel | Natural Gas |
| Heating Type | Forced Air |
| Size Interior | 2 Acres |
| Type | Multi-tenant Industrial |
Parking
| Other |
Land
| Acreage | Yes |
| Land Amenities | Highway |
| Size Depth | 564 Ft ,7 In |
| Size Frontage | 165 Ft |
| Size Irregular | 2.206 |
| Size Total | 2.206 Ac |
| Size Total Text | 2.206 Ac |
| Zoning Description | M1-xx (light Industrial) |
https://www.realtor.ca/real-estate/29561448/6960-34-line-west-perth-logan-logan
88 Wellington St
Stratford, Ontario N5A 2L2
(519) 273-2821
(519) 273-4202
www.stratfordhomes.ca/
Contact Us
Contact us for more information










































